110㎡现代无主灯设计,简约大气
【作 者】:网站采编
【关键词】:
【摘 要】:小区:东风人家 面积:110㎡ 常住人口:4个 户型图: 通过立面与空间的结合,放大横厅的视觉效果 黑白灰为主色调,加以橙色的软装跳色打破空间的沉闷 背景墙的跳色与软装呼应,让
小区:东风人家
面积:110㎡
常住人口:4个
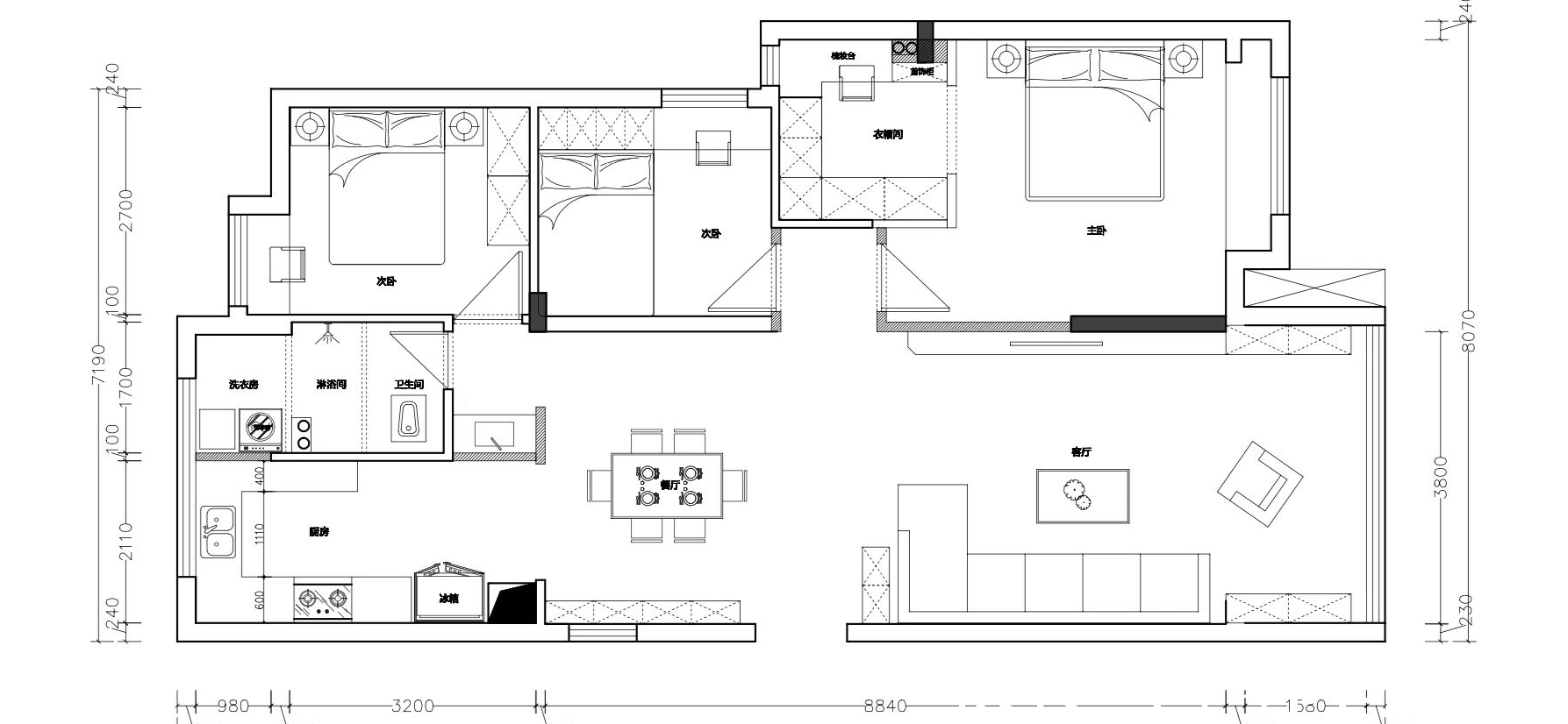
户型图:

通过立面与空间的结合,放大横厅的视觉效果

黑白灰为主色调,加以橙色的软装跳色打破空间的沉闷

背景墙的跳色与软装呼应,让空间对接流畅不突兀

整块的大理石与金属线条凸显轻奢氛围

上大下小的落地窗,好风景一览无余,闲时坐下来喝杯咖啡,眺望窗外的海景

一体大柜门大气且易于打扫,中间设计端景柜让酒柜兼具储藏与展示的作用
文章来源:《大气与环境光学学报》 网址: http://www.dqyhjgxxb.cn/zonghexinwen/2021/1216/580.html